
ラフに使える土間空間をそのまま室内へ取り込んだプラン。
アウトドアや自転車などのメンテナンスや薪ストーブが似合うスタイルです。
お気に入りの道具や家具に囲まれて過ごすくつろぎの場所となります。
家族や気の合う仲間とともに
趣味について語り合うなど多様なシーンが生まれます。
PLAN

シャープでモダンな印象の片流れ屋根と金属系の外壁。
大きく開放的なサッシが外と中の土間をつなぎます。

外と内をつなげる 自由自在な土間
外とのつながりが身近に感じられる土間。
自転車やサーフボードを置いたり、ストーブを炊く。
気軽に趣味と生活が交わる、フレキシブルな空間。

FLOOR PLAN
![]() | ![]() |
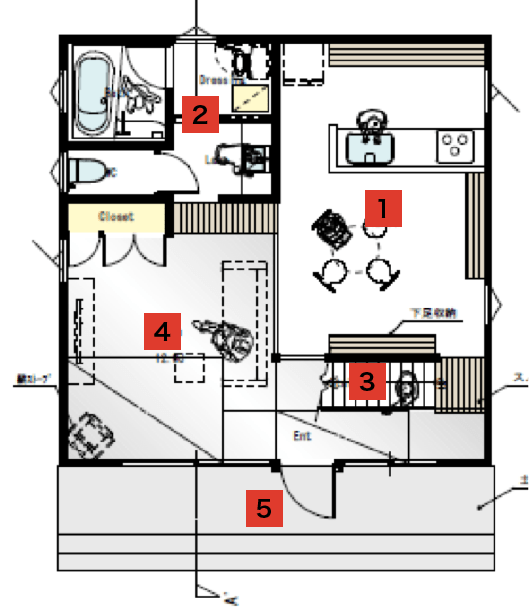
【1】
ダイニングキッチン
スタイリッシュなデザインと開放感あふれるキッチン。
【2】
水周り
家事動線を意識して水廻りをコンパクトにまとめました。
【3】
階段
モダンな印象のスリット階段。
【4】
土間
アウトドアな空間が似合う土間リビング。
【5】
土間テラス
天気の良い日はここでのんびりカフェタイムを楽しめます。
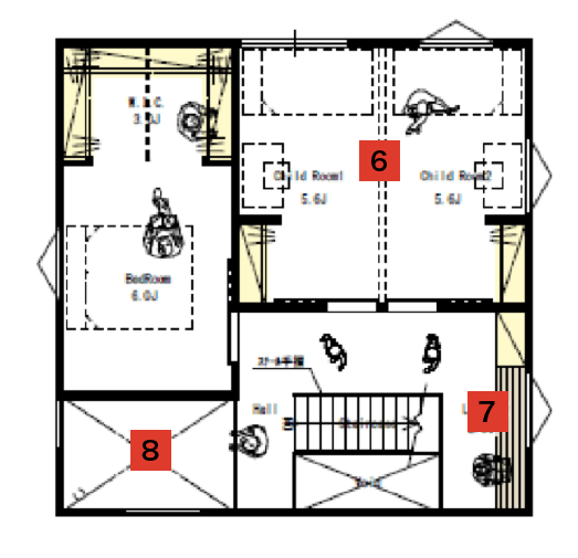
【6】
子供部屋
お子様の成長に合わせてフレキシブルに対応できる2間続きの洋室。
【7】
ライブラリー
勉強したり本を読んだりご家族共有のスペース。
【8】
吹抜け
吹抜けを通して1Fと2Fをゆるやかにつなぎます。

